In Vendita € 35.000 - Azienda Commerciale, Commerciali, Ristorante
Cessione ramo d’azienda a Udine
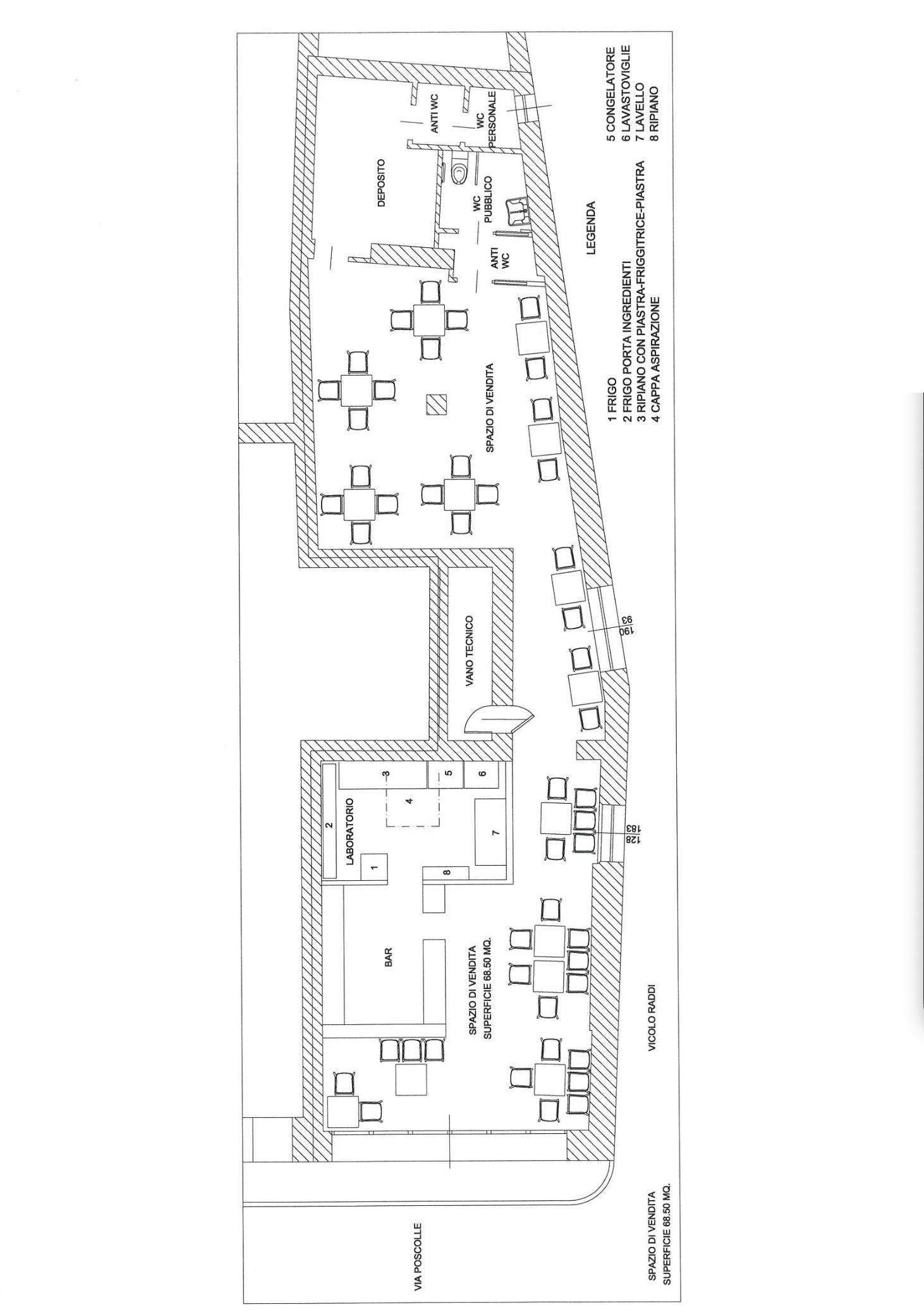
Cessione ramo d’azienda a Udine nel settore della ristorazione. Il “Wrap & Roll”, format moderno e già strutturato nel settore della ristorazione veloce di qualità. Il locale è specializzato in piadine di ogni tipo, ma offre anche panini, toast, piatti caldi e insalatone, perfetti per una clientela variegata e dinamica. Il punto vendita è stato ultimato da meno di un mese: arredi, attrezzature, impianti e finiture sono tutti nuovi e pronti all’uso.
Il contratto di locazione, inoltre, è appena partito a marzo 2025, garantendo condizioni vantaggiose e una lunga prospettiva temporale. 140mq di superficie commerciale con capacità di 40 coperti comodamente organizzati. Spazi moderni, funzionali e progettati con attenzione al workflow. Posizione centrale, situato in una delle vie più apprezzate e frequentate di Udine. Immagine fresca e facilmente personalizzabile per sviluppo o evoluzione del concept. Opportunità e ideale per imprenditori del food, giovani gestori e professionisti che cercano un locale nuovo, performante e pronto all’attività, in una zona strategica della città. Riscaldamanto autonomo e condizionatore con pompa di calore già installato. No spese di condominio.
Caratteristiche: Impiantistica a norma, arredi nuovi, illuminazione al led, cucina arredata ( pensata per più tipologie di cucina ), attrezzatura inclusa, condizionamento, serramenti antisfondamento con serranda.
Metrature: Locale commerciale 140mq
Documentazione depositata presso la nostra agenzia visionabile su appuntamento
Classificazione energetica immobile “B”
CLICCA QUI per vedere tutte le AZIENDE COMMERCIALI della nostra Agenzia.











