In Vendita € 30.000 - Commerciali, Magazzino
Deposito magazzino con autorimessa
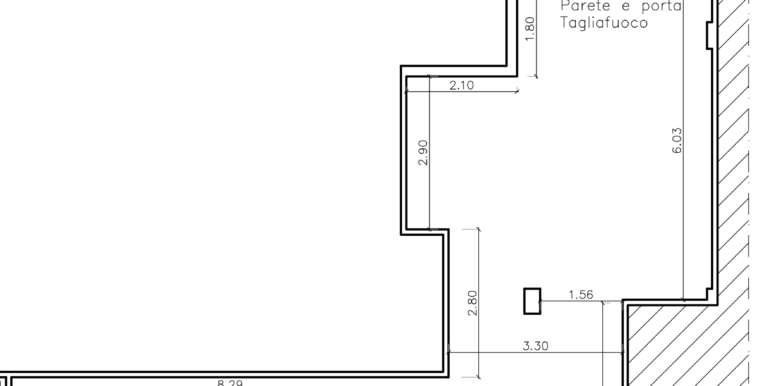
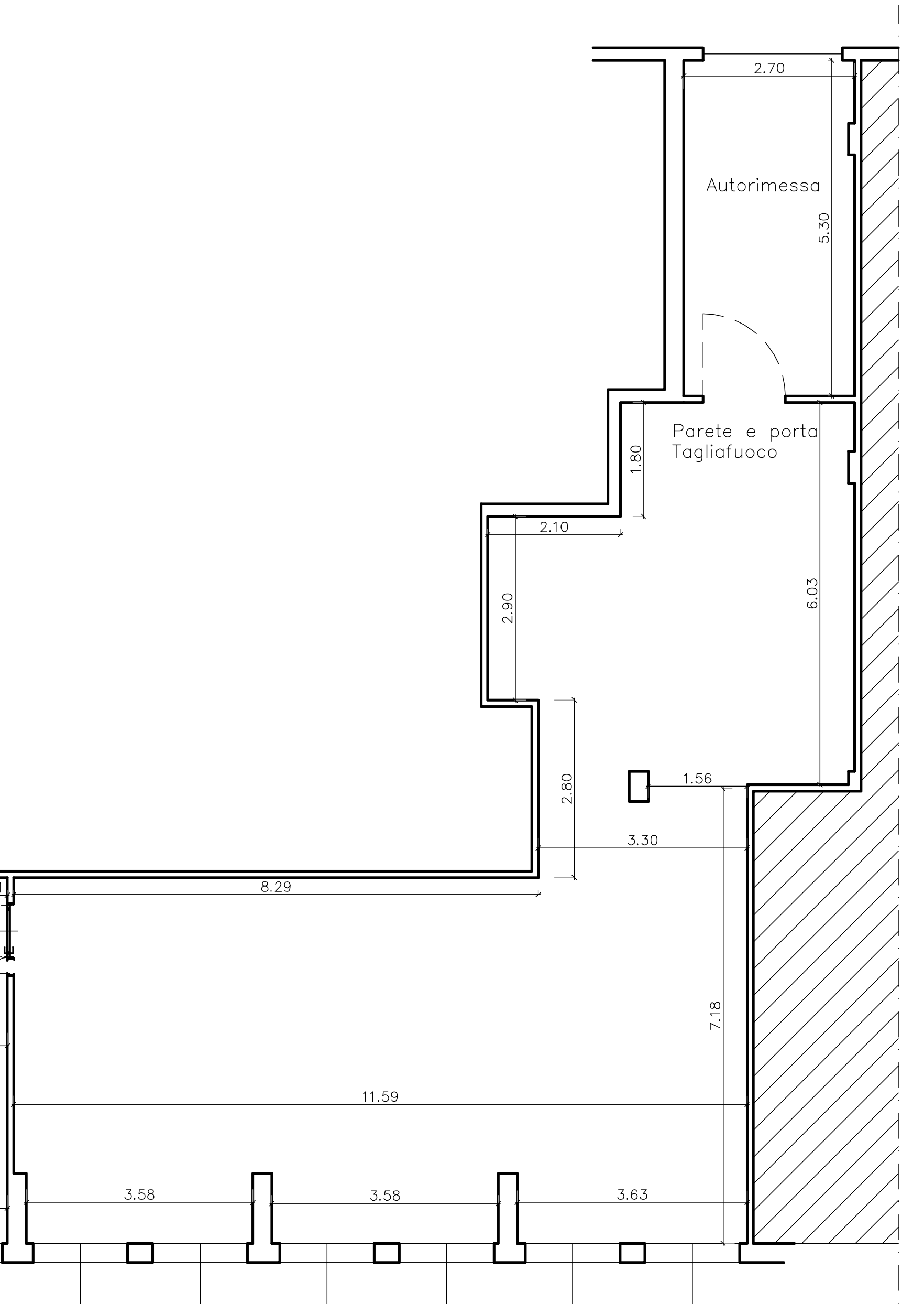
Deposito magazzino con autorimessa di circa 70mq situato al piano interrato di un condominio nella zona degli Uffici della Regione, dotato di comoda autorimessa doppia in lunghezza con accesso largo 2,70 metri e chiusura basculante. Dal garage si accede direttamente al magazzino, uno spazio funzionale e versatile ideale come deposito, laboratorio o area di stoccaggio per attrezzature e materiali di ogni genere. La presenza della doppia autorimessa rende l’immobile particolarmente comodo per chi necessita di carico e scarico agevoli o desidera disporre di un locale ampio e facilmente accessibile. Si vende da privati.
Metrature: 70mq magazzino; 35mq autorimessa
APE in fase di definizione
CLICCA QUI per vedere tutti i MAGAZZINI della nostra Agenzia.



