In Affitto € 800 Al mese - Commerciali, Uffici
Ufficio di 260mq con 3 posti auto
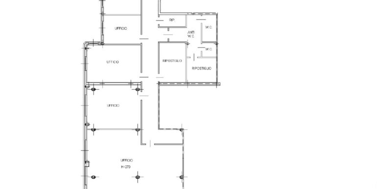
Ufficio di 260mq con 3 posti auto al piano terra, posizionato nel cuore della zona industriale di Buja su stabile edificato nel 2012. Ingresso con spazio accoglienza e segreteria, sala d’attesa con possibilità di trasformazione in sala riunioni, 5 uffici di varie metrature, ripostiglio, stanza tecnica e doppi servizi per il personale. Riscaldamento e condizionamento con sistema di estrazione aria già installati. Nessuna spesa condominiale. Completano l’immobile 3 posti auto scoperti in corte privata completamente recintata.
Caratteristiche: finiture moderne, semi arredato, completamente cablato, serramenti sovradimensionati in termopan con apertura anta-ribalta, nessuna spesa condominiale, parcheggio recintato.
Metrature: ufficio 261mq, 3 posti auto scoperti 42mq.
Contratto di Locazione 6 + 6 più IVA a norma di legge …. Libero dal 01 Giugno 2026
Classificazione Energetica: F
CLICCA QUI per vedere tutti gli UFFICI della nostra Agenzia.





