In Vendita, Progetti & Sviluppo € 500.000 RIBASSATO - Terreni
Terreno Industriale artigianale presso zona ZIU
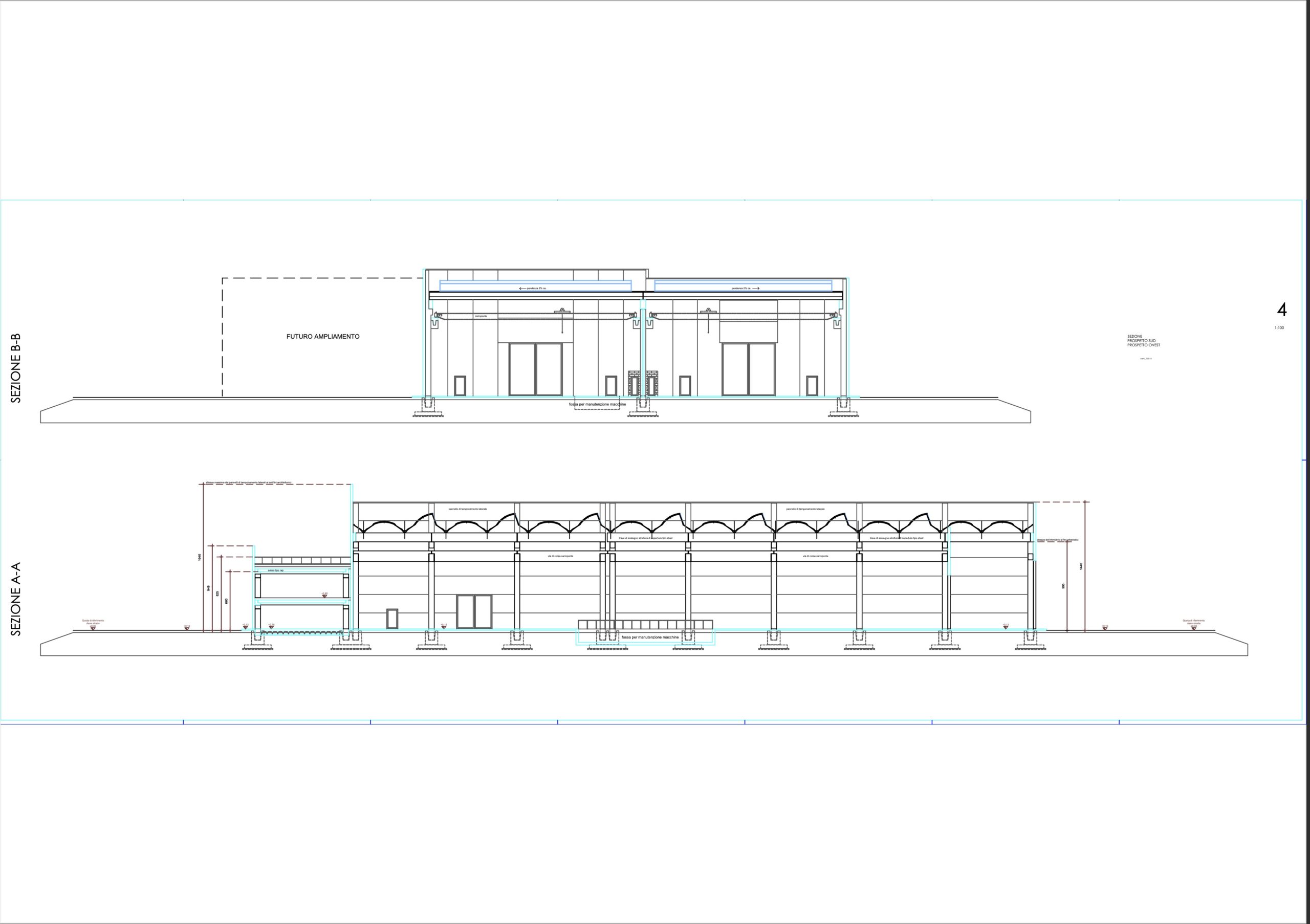
Terreno industriale artigianale presso zona ZIU ( Zona Industriale Udine ) già urbanizzato e con progetto di capannone di 6500mq già visionato per approvazione dall’ente preposto. Possibilità di modifica del progetto esistente.
Si vende da società possibilità di reverse charge Ulteriore documentazione solo presso i nostri uffici.
CLICCA QUI per vedere tutti i TERRENI della nostra Agenzia
Vorresti lavorare in Agenzia Immobiliare? – Ti piacerebbe diventare Agente Immobiliare?
Guarda le nostre offerte di lavoro Clicca QUI 🔜
Compila subito il format nella pagina oppure invia la tua candidatura all’indirizzo amministrazione@immobigo.it
Sarai ricontattato entro 2gg lavorativi dal nostro responsabile della selezione





