In Affitto € 2.500 Al mese - Commerciali, Uffici
Locale commerciale nei pressi del Duomo di Udine
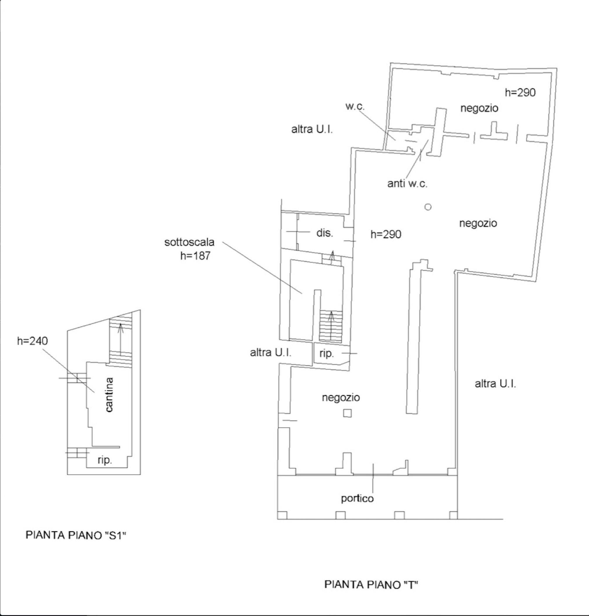
Locale commerciale nei pressi del Duomo di Udine. Si propone in locazione locale commerciale di circa 350mq con fronte vetrinato con tre grandi vetrine. Attualmente l’immobile è al grezzo avanzato ed è possibile personalizzarlo in base alle proprie necessità. Spese condominiali Euro 50/mese. Il locale è usufruibile da subito.
Metrature: Piano terra 340mq, cantina 10mq. Altezza interna 2,90m.
Certificazione energetica Classe E.
Ulteriori informazioni presso i nostri uffici.
CLICCA QUI per vedere tutti gli UFFICI della nostra Agenzia.


