In Vendita, Nuove Costruzioni, Progetti & Sviluppo € 515.000 - Bicamere, Casa, Casa singola, Residenziale, Tricamere, Villa Singola
Passons – Villa di prossima realizzazione
Passons – Villa di prossima realizzazione. In un esclusivo complesso composto da sole due unità abitative, sorgerà una villa dal design contemporaneo, realizzata con le migliori tecnologie disponibili e certificata in classe energetica A4, garanzia di massima efficienza e comfort abitativo.
Il progetto architettonico, curato nei minimi dettagli, coniuga eleganza e pulizia delle linee con una straordinaria funzionalità degli spazi, per un vivere moderno, raffinato e appagante.
L’abitazione si sviluppa su due livelli: al piano terra una luminosissima zona giorno di grandi dimensioni che con pareti vetrate si apre idealmente verso l’esterno e grazie a un ampio deck pavimentato, ci permette di estendere la vita della casa all’aperto e godere dell’intimità del giardino. Completano il piano un bagno completo finestrato e una pratica lavanderia.
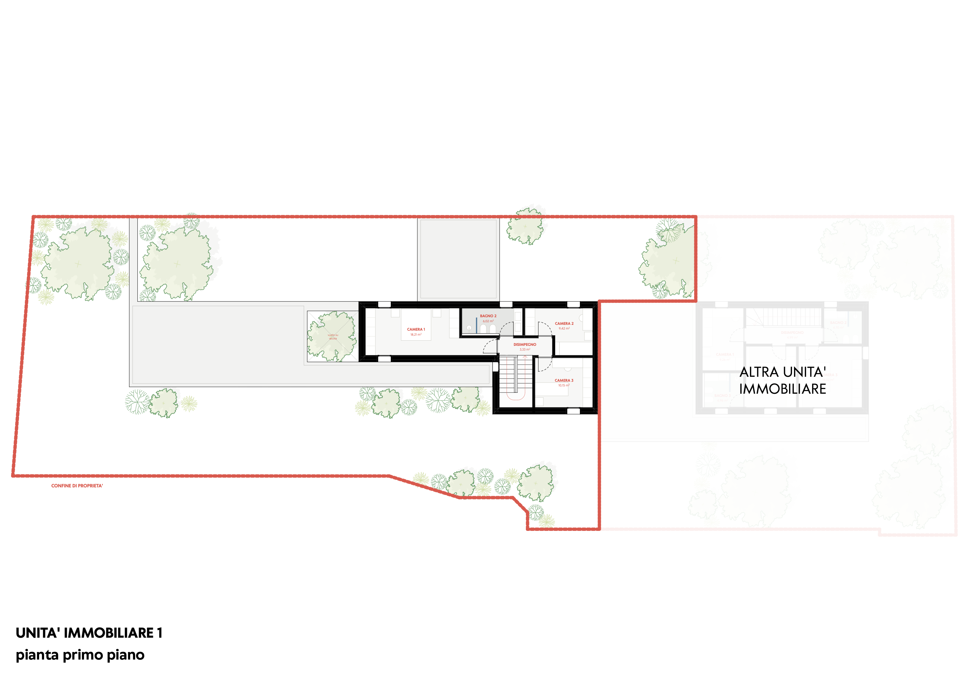
Il primo piano ospita tre camere da letto, tra cui una matrimoniale di ampia metratura con possibilità di realizzare una cabina armadio, oltre a un bagno finestrato.
All’esterno, la proprietà dispone di una tettoia coperta per due posti auto e di un vano tecnico indipendente, ideale come cantina o deposito.
Possibilità di personalizzare spazi interni e finiture. Vieni a trovarci per scoprire il progetto nei dettagli!
CLICCA QUI per vedere tutte le VILLE della nostra Agenzia.
Caratteristiche
- Accumulo fotovoltaico
- Allarme perimetrale
- Allarme volumetrico
- Citofono
- Condizionatore installato
- Cortile interno
- Finiture di pregio
- Giardino privato
- Illuminazione naturale
- Impianto fotovoltaico
- Ingresso indipendente
- Lavanderia
- No spese condominiali
- Pergolato vivibile
- Porta Blindata
- Posto auto scoperto doppio
- Riscaldamento autonomo
- Serramenti triplo vetro
- Videocitofono








