In Affitto € 2.300 Al mese - Commerciali, Negozio
Negozio in Via Mercatovecchio
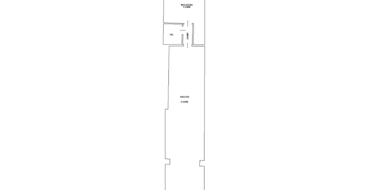
In affitto negozio in via Mercatovecchio, zona centralissima di Udine, con alta visibilità e ampie vetrine. L’immobile dispone di un’ampia superficie di vendita, comodo magazzino sul retro e servizi igienici. Termoautonomo con riscaldamento in pompa di calore. Ottima soluzione per chi desidera una vetrina per la propria attività in una zona prestigiosa di Udine molto richiesta con grande riconoscibilità. Contratto 6+6, si affitta da privati (no IVA, no spese condominiali).
Metrature: 75mq negozio; 25mq magazzino
Caratteristiche: termoautonomo in pompa di calore, climatizzato, vetrinato, impianti a norma, posizione centralissima
Classe energetica in fase di definizione
CLICCA QUI per vedere tutti i NEGOZI della nostra Agenzia.

