In Vendita € 450.000 - Azienda Commerciale, Bar, Commerciali, Ristorante, Trattoria
Vendesi attività ricettiva e di ristorazione a San Leopoldo
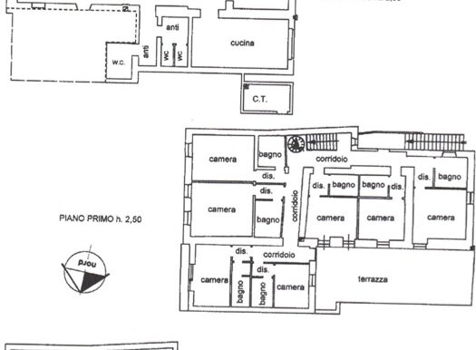
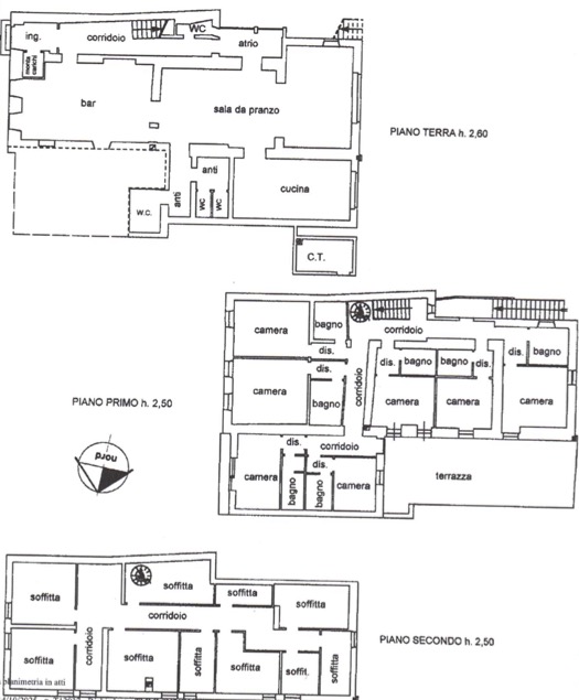
Vendesi attività ricettiva e di ristorazione a San Leopoldo La Glesie (Pontebba). Attività storica e funzionante impresa turistico-ricettiva composta da ristorante/bar e piccolo albergo in piena attività, corredata da locale commerciale adiacente già adibito a negozio. L’attività comprende oltre alla zona ristorante/basanche camere spaziose per attività alberghiera. Completa la proprietà un ampio spazio esterno e zona parcheggio esclusiva. Opportunità ideale per imprenditori del settore che cercano un business con flussi turistici consolidati e utile dimostrabile.
L’immobile si trova a San Leopoldo La Glesie, frazione di Pontebba, zona montana con forte vocazione turistica e collocazione di passaggio verso l’Austria. Pontebba è un centro di riferimento per escursionismo, cicloturismo e turismo invernale nella Carnia. Ideale per sviluppare attività di ristorazione, ricettività e servizi per cicloturisti. Importante clientela proveniente da aziende che si servono della struttuta per il proprio personale. Utile dimostrabile disponibile per visione in fase di trattativa (bilanci, registri e documentazione fiscale). Locale commerciale annesso già allestito come negozio: possibilità di ricavare show room, punto vendita di prodotti tipici, noleggio e-bike o shop per ciclisti. Spazio per eventi, pranzi turistici e convenzioni per gruppi/escursionisti; possibilità di ampliare servizi (delivery, catering, pacchetti experience) per aumentare la marginalità. L’investimento è rivolto ad imprenditori, operatori del turismo outdoor, franchising di ristorazione/ospitalità, o investitori interessati a un’attività con flussi turistici consolidati e potenziale di sviluppo (stagionalità estiva/invernale bilanciata).
Visione documentazione: bilanci certificati, planimetrie, descrizione completa dei locali e proposta economica presso la nostra agenzia.
CLICCA QUI per vedere tutte le CESSIONI DI ATTIVITA’ della nostra Agenzia.







