In Affitto € 2.800 Al mese RIBASSATO - Commerciali, Uffici
Ufficio 480mq in locazione Martignacco
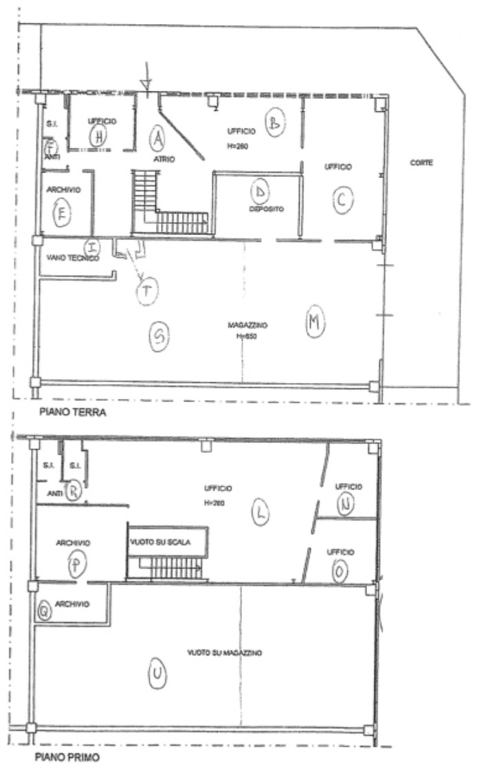
Ufficio 480mq in locazione a Martignacco, di cui 370mq destinati ad uso direzionale, distribuiti su due livelli. L’ingresso si apre su una reception che conduce a diversi ambienti operativi. Al piano superiore sono presenti due uffici direzionali e un ampio open space, per un totale di circa dieci postazioni di lavoro. Entrambi i piani sono dotati di servizi igienici e sala riunioni. Completa la proprietà un magazzino di 190mq con doppia altezza, oltre a un’area esterna di circa 150mq, recintata e accessibile tramite cancello automatico. Ampia disponibilità di parcheggio libero nelle immediate vicinanze. L’intero immobile è dotato di impianto di sicurezza con accesso tramite badge. Dal punto di vista energetico, è presente un impianto fotovoltaico da 20 kW che, insieme alle pompe di calore caldo/freddo alimentate elettricamente, contribuisce al raggiungimento della classe energetica B.
Metrature: uffici 370mq, magazzino (doppia altezza) 190mq, area scoperta 150mq.
Caratteristiche: Arredo completo, Impianto di sicurezza con badge, Impianto fotovoltaico da 20 kW
Contratto di locazione 6+6 o 9+9 più iva a norma di legge
Spese condominiali: assenti
Classe energetica: B
CLICCA QUI per vedere tutti gli UFFICI della nostra Agenzia.










