In Vendita € 1.100.000 - Appartamento, Bicamere, Capannoni, Commerciali, Quadricamere, Residenziale, Tricamere
Abitazione ristrutturata più ampi spazi commerciali
Abitazione ristrutturata più ampi spazi commerciali. Proponiamo in vendita una soluzione immobiliare estremamente versatile, ideale per chi desidera coniugare abitazione e attività lavorativa nello stesso contesto.
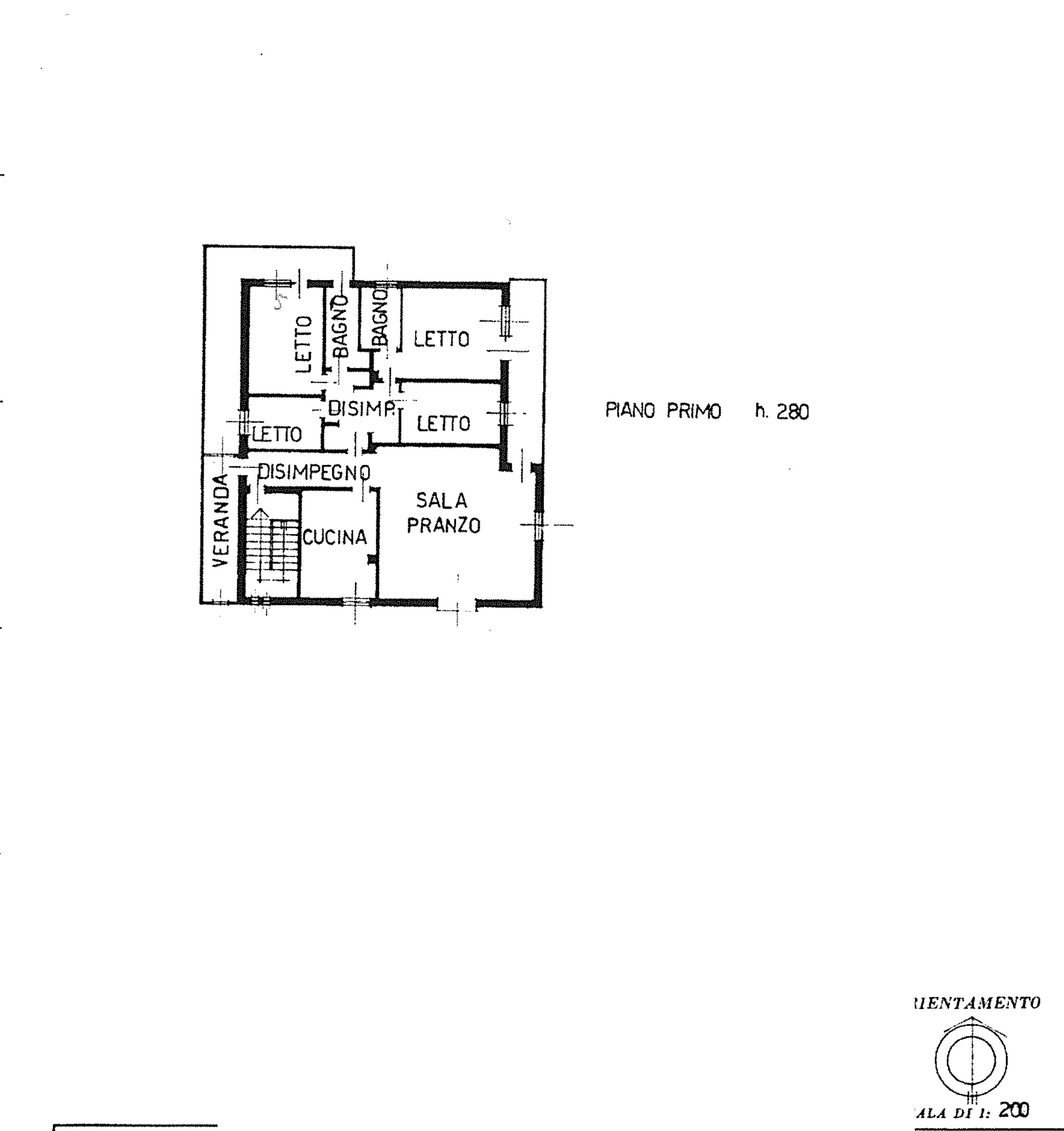
La proprietà si compone di un appartamento al primo piano, completamente ristrutturato, caratterizzato da ambienti ben distribuiti e luminosi. Gli spazi interni sono stati oggetto di recente intervento, garantendo comfort abitativo, finiture moderne e impianti aggiornati. L’appartamento si compone di un moderno ingresso dal quale si accede alla cucina separata abitabile per sei persone (moderna e funzionale). Si trova poi un’ampia zona giorno con caminetto e pavimenti in marmo, luminosa ed accogliente. Nella zona notte abbiamo due camere matrimoniali e due singole servite da due bagni. L’appartamento è circondato da un bellisimo terrazzo con vista aperta sul verde.
Al piano terra e interrato si sviluppa la parte commerciale, composta da: negozio fronte strada, ideale per attività a contatto con il pubblico, ampio capannone, perfetto come laboratorio, deposito o spazio operativo; piano interrato, sfruttabile come magazzino, archivio oppure trasformabile in accogliente taverna. La soluzione si distingue per: indipendenza e funzionalità degli spazi.
Metrature: Appartamento 176mq, terrazzo 32mq, negozio 474mq, capannone 798mq, seminterrato 503mq, tettoia 317mq
Caratteristiche: abitazione completamente ristrutturata, domotica, caminetto, pavimenti in marmo, spazi funzionali e moderni, possibilità di unificare attività lavorativa e privata
Classe energetica in fase di definizione
CLICCA QUI per vedere tutti i CAPANNONI della nostra Agenzia





































