In Vendita € 300.000 - Bicamere, Casa, Casa singola, Palazzo, Quadricamere, Residenziale, Tricamere
Via Martignacco: opportunità immobiliare
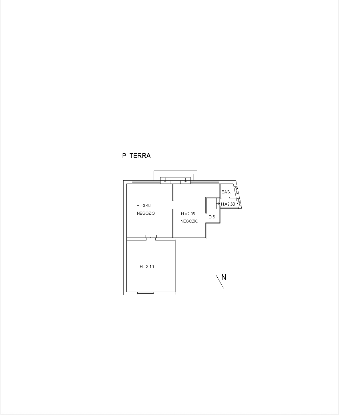
Via Martignacco: opportunità immobiliare con alto potenziale di valorizzazione. In una delle direttrici più dinamiche di Udine, proponiamo in vendita intero stabile cielo-terra ideale per investitori alla ricerca di un’operazione di riqualificazione con margini interessanti. L’immobile si compone di più unità distribuite su diversi livelli: al piano terra troviamo un locale commerciale vetrinato attualmente locato, che garantisce una rendita mensile già attiva; ai piani superiori si sviluppa la parte residenziale, con spazi da riorganizzare e valorizzare attraverso un intervento di ristrutturazione mirato. La configurazione attuale, come da planimetrie, offre ampie possibilità di redistribuzione interna, consentendo la creazione di più unità abitative oppure una soluzione mista residenziale/direzionale, in linea con la crescente domanda della zona. Il vero punto di forza è il potenziale di sviluppo: possibilità di frazionamento per massimizzare la redditività, incremento di valore post-ristrutturazione in un’area ben servita e richiesta, presenza di reddito immediato grazie al negozio già locato, ottima visibilità e accessibilità su via di forte passaggio. Soluzione perfetta per operatori del settore immobiliare, imprese o privati che desiderano realizzare un progetto di riqualificazione e rivendita oppure mantenere una parte a reddito. Un investimento concreto, con basi solide e margini di crescita tangibili. Per maggiori informazioni, documentazione completa e valutazione dell’operazione in agenzia.
A completare questa interessante opportunità, l’immobile è collegato a un terreno edificabile di 858 mq, per il quale è già disponibile un eventuale progetto di costruzione residenziale. Una soluzione ideale per sviluppatori e investitori che desiderano valorizzare ulteriormente il compendio. Possibilità di acquistare entrambe le proprietà, ampliando così il potenziale dell’investimento.
CLICCA QUI per vedere tutti gli EDIFICI della nostra Agenzia.









