In Affitto € 900 Al mese - Commerciali, Uffici
Ampio ufficio con parcheggio
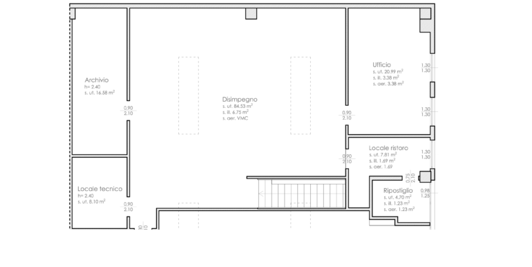
Ampio ufficio con parcheggio al primo piano in zona commerciale su strada di scorrimento. L’ufficio è così composto: ingresso autonomo, ampia zona open space, uffici separati, ripostiglio, servizi igienici con antibagno. Interni con ottima luce naturale, un lato interamente finestrato e lucernai sul soffitto. Grande parcheggio destinato all’attività. Spese condominiali 50 Euro al mese comprensive di amministrazione, illuminazione e manutenzione degli spazi comuni. Si affitta da persona fisica con contratto 6+6 senza IVA.
Metrature: 150 mq di ufficio al primo piano.
Caratteristiche: parcheggio libero, termoautonomo, climatizzato, ventilazione forzata, infissi con vetrocamera, accessibile a portatori di disabilità.
APE in fase di definizione.
CLICCA QUI per vedere tutti gli UFFICI della nostra Agenzia.


