In Affitto € 2.500 Al mese - Commerciali, Negozio
Negozio con canna fumaria
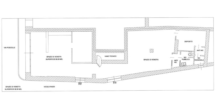
Negozio con canna fumaria, vetrinato in pieno centro storico di 140mq. L’immobile è stato rinnovato da meno di un anno e vanta finiture moderne, impianti nuovi e un elevato standard qualitativo. La presenza della canna fumaria rende il locale ideale per attività di ristorazione di qualsiasi tipo. L’ampia superficie e la versatilità degli spazi, inoltre, lo rendono perfetto anche per negozi, studi professionali, attività di servizio o concept innovativi. Riscaldamento autonomo e condizionamento con pompa di calore già installato. No spese di condominio. Fee d’ingresso
Caratteristiche: Primo ingresso, impiantistica certificata, canna fumaria, vetrina antisfondamento.
Contratto di locazione 6+6 o 9+9 più IVA norma di legge
Classificazione energetica “B”
CLICCA QUI per vedere tutti i NEGOZI della nostra Agenzia.

