In Affitto € 1.500 Al mese - Appartamento, Bicamere, Mini, Residenziale
Appartamento di assoluto prestigio con affaccio sul Duomo
Appartamento di assoluto prestigio con affaccio sul Duomo. Nel cuore più autentico del centro storico di Udine, proponiamo in locazione un appartamento pensato per una clientela esigente che ricerca eleganza, comfort e rappresentatività in una delle posizioni più iconiche della città. L’immobile è inserito in una raffinata palazzina d’epoca, al secondo piano senza ascensore, contesto che garantisce charme, riservatezza e un’atmosfera storica di grande valore. L’appartamento è completamente ristrutturato, con un attento equilibrio tra elementi storici originali e finiture moderne di qualità. La distribuzione degli spazi è particolarmente funzionale e valorizza al massimo la vivibilità degli ambienti. La zona giorno si apre su un ampio soggiorno, impreziosito da una suggestiva parete in muratura originale a vista e da una parete affrescata con affresco di pregio, elemento unico che conferisce all’ambiente carattere, eleganza e forte personalità. Questo spazio si presta perfettamente sia alla vita quotidiana sia alla ricezione, risultando ideale per chi ama ambienti rappresentativi. La cucina abitabile, ampia e perfettamente organizzata, è pensata per ospitare comodamente 6/8 persone. E’ dotata di tutti gli elettrodomestici, rendendola ideale per chi desidera una vera cucina da vivere, separata ma in perfetta continuità con la zona giorno. La separazione tra area giorno e area notte garantisce comfort, privacy e un’ottima gestione degli spazi. La zona notte ospita due grandi camere matrimoniali, entrambe di generose dimensioni, ideali sia per una coppia che per una famiglia o per professionisti che necessitano di una stanza aggiuntiva per studio o ospiti. I due bagni con doccia, moderni ed eleganti, assicurano massima funzionalità e comfort anche nelle esigenze quotidiane più elevate. Completa la proprietà un comodo ripostiglio. Le travi a vista, il pavimento in cotto nella zona giorno e il parquet nella zona notte esaltano il carattere dell’abitazione, creando un’atmosfera calda, raffinata e senza tempo. L’immobile è dotato di impianto di riscaldamento autonomo, impianto di climatizzazione caldo/freddo, porta blindata ed infissi con vetrocamera per un perfetto isolamento termico ed acustico, garantendo elevati standard di comfort, sicurezza ed efficienza. Una soluzione abitativa di alto profilo, ideale per chi desidera vivere il centro storico di Udine da una posizione privilegiata, in un appartamento unico per vista, qualità degli spazi e valore architettonico.
Contratto di locazione 4+4, spese condominiali circa 70Euro/mese
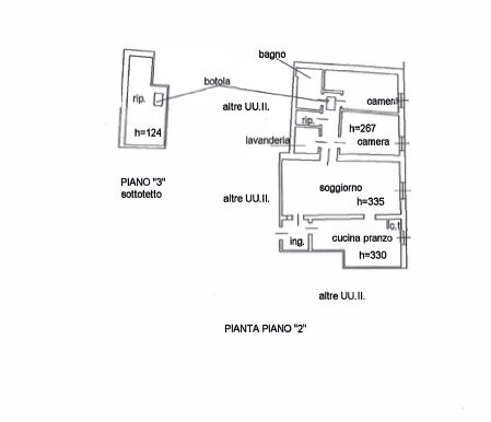
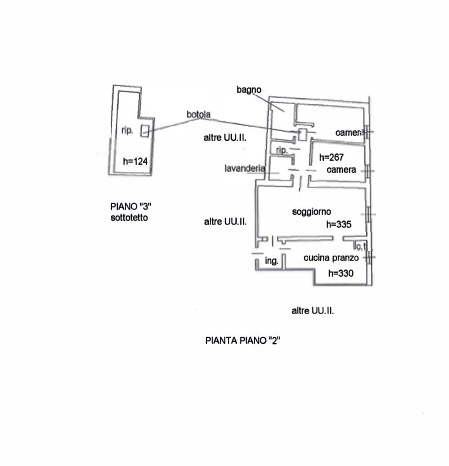
Metrature: 100mq
Caratteristiche: La posizione è uno dei principali punti di forza: vivere affacciati sul Duomo significa godere ogni giorno di una vista esclusiva, di grande impatto scenografico, oltre alla comodità di avere a pochi passi tutti i servizi del centro, ristoranti di alto livello, boutique, istituzioni culturali e collegamenti principali, senza rinunciare alla tranquillità tipica delle zone più nobili. Pareti affrescate. Ristrutturato.
CLASSE ENERGETICA: E
CLICCA QUI per vedere tutti gli APPARTAMENTI della nostra Agenzia.



















