In Vendita € 500.000 - Capannoni, Commerciali
Capannone industriale di 2600mq con scoperto
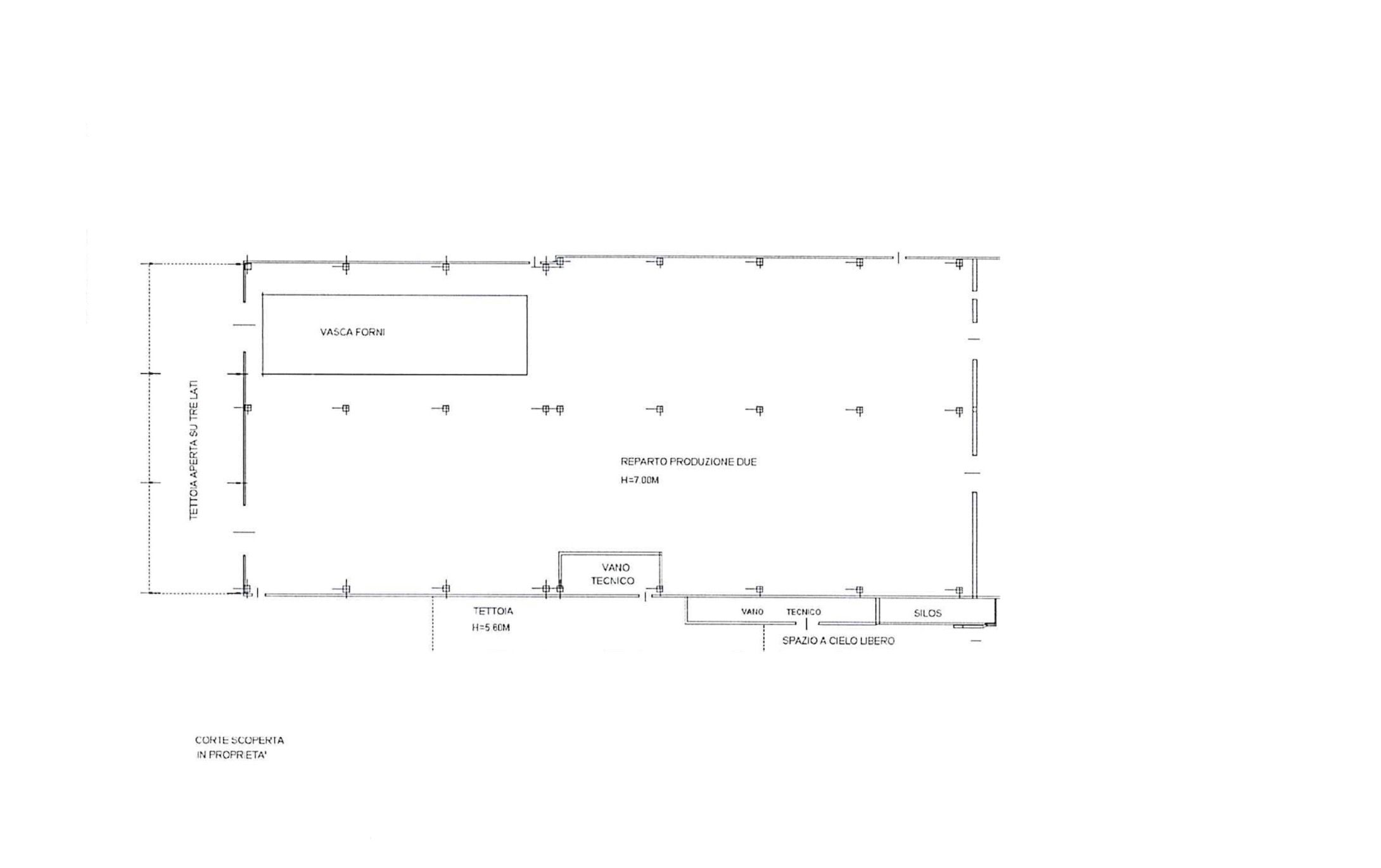
Capannone industriale di 2600mq con scoperto in vendita a Remanzacco, Zona Industriale B, con destinazione catastale D/7. Ha un’ampia area esterna di circa 2000mq completamente recintata, dotata di cancello automatizzato. La struttura presenta un’altezza totale di 7 metri e altezza utile sottotrave di 5,20 metri con prediposizione linee per carroponte già presenti, risultando adatta per attività produttive, industriali e logistiche, inclusa movimentazione mezzi pesanti. Anno di costruzione 1993.
L’immobile si trova in eccellenti condizioni generali, è attualmente soggetto a interventi di sistemazione interna e offre la possibilità di personalizzare e riorganizzazione degli spazi e delle aree destinate alla produzione. Tra le dotazioni tecniche principali si evidenziano: impianto di illuminazione LED, anello antincendio con certificato CPI per rischio incendio massimo, impianti completamente a norma, copertura in ottimo stato manutentivo e predisposizione per la creazione di uffici anche su due livelli e area attrezzata per la ricarica di muletti elettrici e compressori.
L’accesso diretto è garantito da due portoni industriali di grandi dimensioni (4,60mt di larghezza per 4,50mt di altezza), ideali per operazioni di carico e scarico merci su copertura di oltre 400mq. All’esterno si trovano aree di parcheggio interne e ampi spazi di manovra per mezzi industriali e autoarticolati per oltre 2000mq.
L’immobile è sottoposto a verifica per l’Attestato di Prestazione Energetica come previsto dal Decreto Legislativo 192/2005 e DPR 412/93.
La disponibilità dell’immobile è immediata, con acquisto diretto da società con applicazione IVA a norma di legge o possibilità di Reverse Charge.
CLICCA QUI per vedere tutti i CAPANNONI della nostra Agenzia.




