In Vendita € 1.250.000 - Capannoni, Commerciali
Capannone con carroponti e uffici
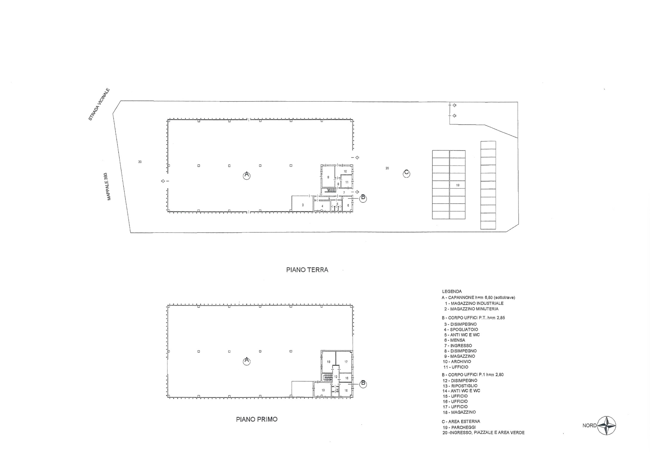
Capannone con carroponti e uffici. Capannone industriale/artigianale con 3 carroponti da 5t (2 Omis e 1 Bonfanti), inserito in un lotto di 5.500mq completamente recintato, con ampia area di manovra per la logistica e la movimentazione dei bilici. Il capannone misura 1.630mq ed è dotato di due portoni automatizzati fronte/retro (4,6mq x 4,5mq ). Al suo interno troviamo gli uffici disposti su due livelli, in perfette condizioni: Piano Terra: uffici, archivio, magazzino, spogliatoi, mensa e servizi. Piano Primo: presidenza, due uffici indipendenti, archivio, sala riunioni e servizi.
Caratteristiche: Ottimamente manutenzionato, impianti a norma, accesso per bilici, 3 carroponti da 5 t, uffici climatizzati, sala server, spogliatoi per il personale, allarme volumetrico e perimetrale, videosorveglianza, cancelli automatizzati. Lotto completamente recintato.
Metrature: capannone 1.630mq; uffici PT 106mq; uffici P1 174mq; 11 posti auto scoperti 154mq; 19 posti auto coperti 266mq, area di manovra 1700mq, lotto recintato 5500mq
CLICCA QUI per vedere tutti i CAPANNONI della nostra Agenzia.





