In Vendita € 219.000 RIBASSATO - Appartamento, Bicamere, Mini, Residenziale
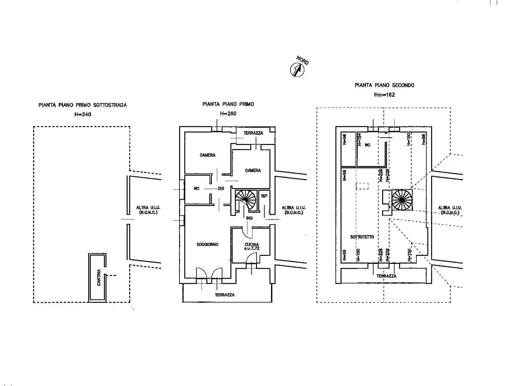
Appartamento bilivelli con terrazze
Appartamento bilivelli con terrazze in via Argentina, all’interno di una curata palazzina di sole quattro unità. Troviamo questo appartamento, senza spese condominiali, ampio e ben distribuito, ideale per chi cerca comfort, indipendenza e spazi da vivere.
L’ingresso accompagna in un luminoso soggiorno con affaccio su una bella terrazza esposta a sud. La cucina è separata e abitabile, pensata per chi ama vivere la casa anche nei gesti quotidiani. La zona notte ospita due camere da letto, entrambe con uscita su una seconda terrazza, oltre a un bagno finestrato e a un comodo locale ripostiglio/lavanderia.
Salendo al piano superiore, l’atmosfera cambia: una grande soffitta open space, rifinita con pavimento in legno e soffitto perlinato, accoglie uno spazio versatile e suggestivo, con affaccio panoramico sulle montagne, perfetto come studio, area relax, zona hobby o suite aggiuntiva. Il secondo termostato consente una gestione autonoma del riscaldamento, mentre il bagno finestrato completo e l’accesso a una terza terrazza rendono questo livello indipendente e funzionale.
L’appartamento è recente, in condizioni impeccabili e pronto da abitare, senza alcun intervento da prevedere. Le finiture includono pavimenti in gres e legno, infissi in legno con doppio vetro, zanzariere e scuretti esterni, aria condizionata e caldaia nuova a condensazione, a garanzia di comfort ed efficienza.
A completare la proprietà cantina, garage e posto auto esterno condominiale assegnato, un plus che fa la differenza.
Metrature: primo piano 85mq, piano secondo 89mq, terrazze 12,7mq e 4mq, garage 16mq, cantina 4,5mq
Classe energetica C
CLICCA QUI per vedere tutti gli APPARTAMENTI della nostra Agenzia.























